Portfolio
About Me
Contact
Interiors
Portfolio
About Me
Contact
Interiors
Amalie's Studio
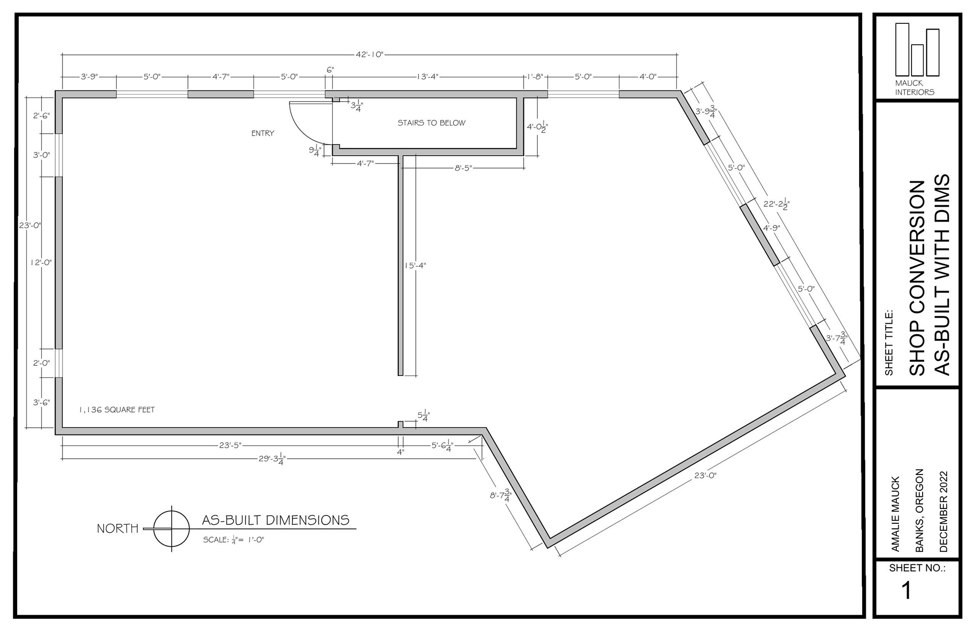
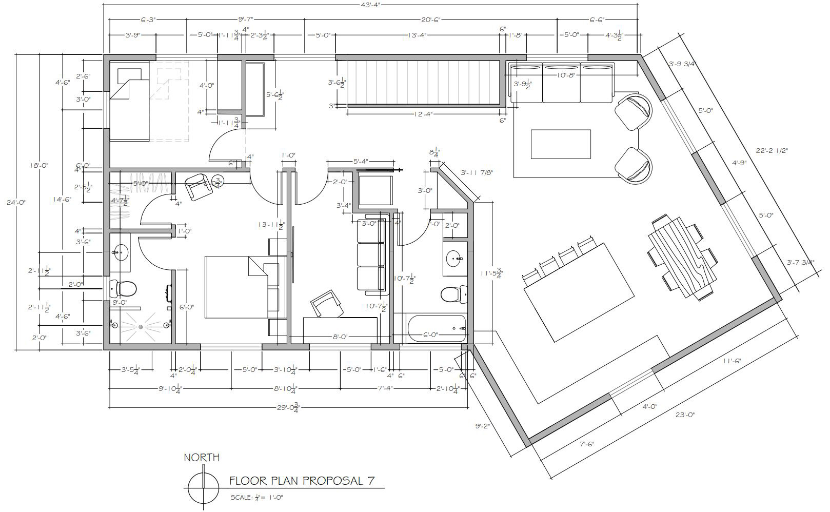
Outbuilding to ADU Conversion
Floor plan design for the conversion of an outbuilding into an ADU for a small family.
Plans
Renderings
You may also like
Full Condo Remodel into Vacation Rental
2022
Residential Remodel
2021
↑
Back to Top