
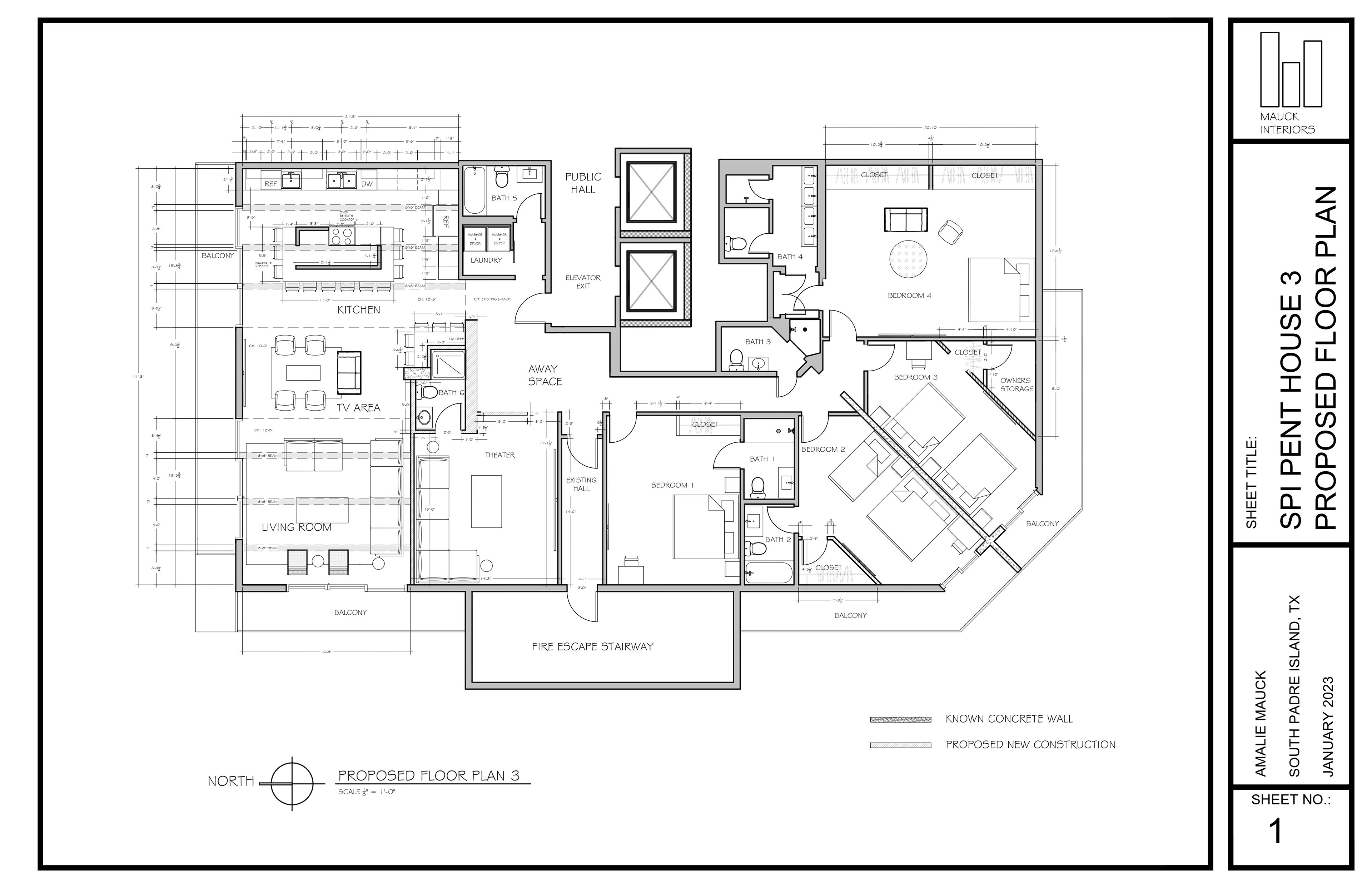
Benj and Khong purchased a penthouse condo in South Padre Island, Texas, and were looking to convert it into an Airbnb. They have ample experience in the Airbnb field, owning multiple homes along the Oregon coast accommodating 15-18 guests each; intending this penthouse conversion to maximize guest occupancy as well. Both partners appreciate the modern and contemporary design styles, neutral colors, and coastal elements and wished this to be incorporated into the design. They wanted the Airbnb to feature natural wood, light/cream paint colors, and pops of green. Khong is particular about keeping the décor to a minimum for easier cleaning. She also preferred no larger pieces or bright colors that would detract from the view and refrain from placing objects near the windows. Benj is keen on functionality and flow for guests. He understood a short-term rental does not require large amounts of storage, so requested that spare rooms and grand closets be eliminated and bedroom space be optimized. They also asked that one of the bedrooms be a bunk/away room and to add bathrooms to the condo. The concept was to create a light, functional space that minimizes the interior to maximize the exterior view. Décor is minimal, featuring coastal elements and textures mimicking the surrounding fauna. Clean lines replicate modern design and are incorporated into a combination of contemporary and Nordic styles. Flow and spaces are “no nonsense”; public spaces on one side of the condo, private on the other.
Before and After






Listing Photos






















Plans

